
WASTEWATER TREATMENT (IRON AND MANGANESE) IN THE PAINT INDUSTRY
THE CHALLENGE: ENVIRONMENTAL URGENCY AND OPERATIONAL CONTINUITY
When a paint manufacturer detects the presence of iron and manganese in the soil, time is of the essence. In Cotia (SP), we faced a scenario where technical precision was vital: it was necessary to treat the effluent resulting from soil contamination and, simultaneously, treat the effluent generated during the production process.
One of the biggest challenges of this project was to carry it out without causing any production downtime for the company. Our team was called upon to deliver a solution that combined agility with compliance with environmental regulations.
GIGWATER SOLUTION: END-TO-END ENGINEERING
Unlike generic solutions, GIGWATER applied the concept of Full Engineering. We conducted several site visits to understand the specific characteristics of the industry, in addition to coordinating strategically with the client’s internal team and the third-party company responsible for the remediation project.
This diagnostic phase was essential for mapping the chemical composition of the effluent, including iron and manganese levels, pH, and suspended solids.
RESULTS: PERFORMANCE AND SUSTAINABILITY
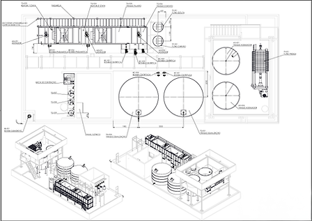
Based on field data collection, we began our work from the conceptual phase through to the design phase, developing a wastewater treatment plant featuring physical-chemical treatment and a capacity to treat 5 m³/h of wastewater.
The system was designed to operate on two fronts simultaneously: treating the waste from the remediation of contaminated soil water and continuously treating the effluent generated by industrial production.
In addition to the main system, we delivered the entire hydraulic supply network, ensuring the complete and integrated operation of the solution, from treatment to final disposal. The company also executed the civil and electrical aspects of the project. All engineering, fabrication, assembly, installation, and commissioning were carried out by GIGWATER. The results achieved exceeded our client’s expectations:
TREATED WATER IN COMPLIANCE WITH ENVIRONMENTAL STANDARDS
TRANSFORMATION OF SLUDGE INTO DRY CAKE, REDUCING COSTS
SOIL IN THE PROCESS OF RECOVERY, MITIGATING LEGAL RISKS
MANUFACTURING OPERATION WITHOUT DOWNTIME DURING IMPLEMENTATION


This success case in Cotia further reinforces GIGWATER's ability to solve complex challenges with minimal interference in the customer's routine. While they take care of the operation, we take care of their water and wastewater treatment.


.png)






